





Tirane, shitet apartament , 141 m² 550.000 €
Tirane
Nr. Njesia - Zona me e afert?
6 Pallati me Shigjeta | Delijorgji
Tipi
apartament
Siperfaqja m²
141
m²
Nr dhoma
2+1
Cmimi Euro
550000
€
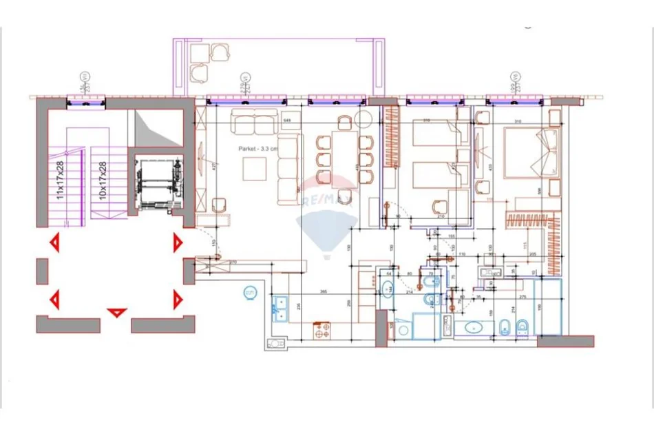
Apartamenti 2+1+2 per shitje te Delijorgji
Apartament 2+1+2 për Shitje Rruga e Kavajës, Kompleksi Delijorgji
Shitet apartament tipologjie 2+1+2, i vendosur në Kompleksin Delijorgji, në Rrugën e Kavajës, një nga zonat më të konsoliduara dhe të kërkuara për banim në Tiranë. Apartamenti eshte 3+1 dhe eshte konvertuar ne 2+1.
Apartamenti ka një sipërfaqe totale prej 140 m², ndodhet në katin e 8-të dhe ka orientim Perëndim.
Prona është e investuar nga vetë pronari dhe jo sipas standardeve bazë të firmës ndërtuese. Janë realizuar ndërhyrje dhe përmirësime në punimet e brendshme, materialet.
Apartamenti shitet i mobiluar, me mobilim modern dhe cilësor,nga marka të njohura. Është i pajisur me sistem chiller për ngrohjeftohje, si dhe panele diellore, duke ofruar eficiencë energjetike dhe kushte optimale jetese. Një nga dhomat e gjumit disponon garderobë të dedikuar dhe nje ballkon.
Në çmim përfshihet 1 post parkimi në katin -1, si dhe një magazinë,.
Per me shume informacione me kontaktoni.
Cel. : 068 800 3327
Location information
Open in maps
address
6 Pallati me Shigjeta | Delijorgji, Tirane, Shqiperi
0688003327