

SHITET : 1+1📍Liqeni i That (Pamje Nga Liqeni✨️) - 155,000€ - || Pllt.V2026 - Kt.3 - Sp.71m² - Vetem 2 Hapa Larg Liqenit te That🏃🏻♂️
Tirane
Nr. Njesia - Zona me e afert?
5 Liqeni thate | Kopshti Botanik
Location Rruga + Nr.
Liqeni I Thate
Tipi
apartament
Nr dhoma
1+1
Kati
Kati
3
Cmimi Euro
155000
€
* SHITET: 1+1Liqeni i Thate (Me Pamje Nga Liqeni️) -Ndertim i Ri V.2026 - Kati.3 - 155,000€ - Sp.71m² || Lehtesisht i aksesueshëm nga unaza e re e Tiranës *
Q5742 TH.GJ
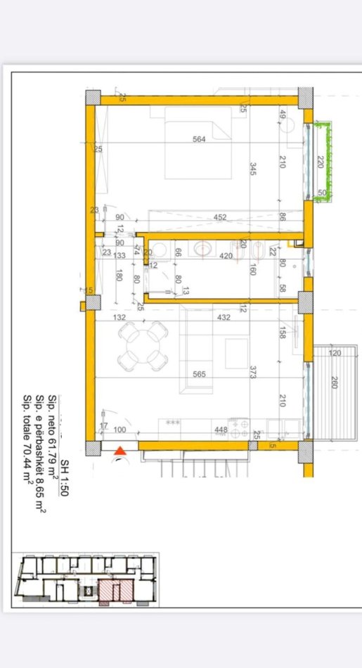
Te dhenat e ndarjes:
- 1 dhome gjumi
- 1 sallon + kuzhine
- 1 tualete
- 1 korridor
- 2 ballkone
SIP TOTALE: 70,44m²
SIP Neto: 61,79 m²
KATI: 3
KATET E PALLATIT: 5
Pallat I ri:
Orientimi: Veri - Lindje
Viti I ndertimit: 2026
ASHENSOR: PO
HIPOTEKE: JO
2240€/m² te Liqeni i Thatë, në një nga zonat më të kërkuara të Tiranës, me çmim shumë konkurrues, nën mesataren e tregut pasi ne kete zone shkon 2400€/m² -2500€/m²
- Apartamenti ndodhet ne katin e 3, ne nje ndertim te ri ne zonen e Liqenit te That, me pamje te mrekullueshme nga Liqeni️
- Mundesi shume e mire banimi per familjar, zone e qete me te gjitha facilitetet per nje jetese komode
- Arkitektura e ndërtesës lejon qarkullimin e ajrit, dritë natyrale dhe integrimin e mjedisit përreth me apartamentin
- Ndertim i Ri dhe kubature e rregullt
- 2 Ballkone me dalje ne cdo dhome
- I Banueshem ne Maj
- Nje nga zonat me te qeta te Liqenit te That
- Apartament i cili fal orientimit ka Drite natyrale gjate Gjithe dites
- I përshtatshëm për banim por edhe per investim
- Grila me elektromotor
- Parket Druri
- Kondicionim Qendror
- 1 Tualet me ajrosje natyrale
Cmimi: 155,000€
Tel/WhatsApp: 0697866878
Cel. : 0697866878
Contact
Location information
Open in maps
address
Liqeni I Thate, Tirane
New Bllok - Real Estate
Rr. Vaso Pasha, Bllok, Tirane
+355692514030
[email protected]