

Tirane, shitet apartament Kati 10, 94 m² 169.200 €
Tirane
Tipi
apartament
Siperfaqja m²
94
m²
Nr dhoma
2+1
Kati
Kati
10
Cmimi Euro
169200
€
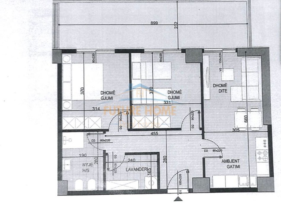
Disponojmë apartament 2+1 për shitje tek Fusha e Aviacionit. Infomacion mbi pronen: • Sipërfaqja bruto: 112.8 m2 • Sipërfaqja neto: 94 m2 • Kati 10 Organizimi: • Ambient ndenjie • Ambient gatimi • 2 Dhoma Gjumi • 1 Tualet • 1 Ballkon Detaje të tjera: • Fazë ndërtimi (karabina) • Fasadë e ventiluar • Me ashensor Për një vizitë në pronë na kontaktoni!
Kontaktoni: +355692054834
Cel. : +355692054834
Location information
Open in maps
address
Tirane, Shqiperi
+355 692054834