

Tirane, shitet 2+1 , 102 m² 81.500 € (Kamez)
Tirane
Location Rruga + Nr.
Kamez
Siperfaqja m²
102
m²
Cmimi Euro
81500
€
SHITET APARTAMENT 2+1- KAMEZ! 102.000EUROID: Billion4360
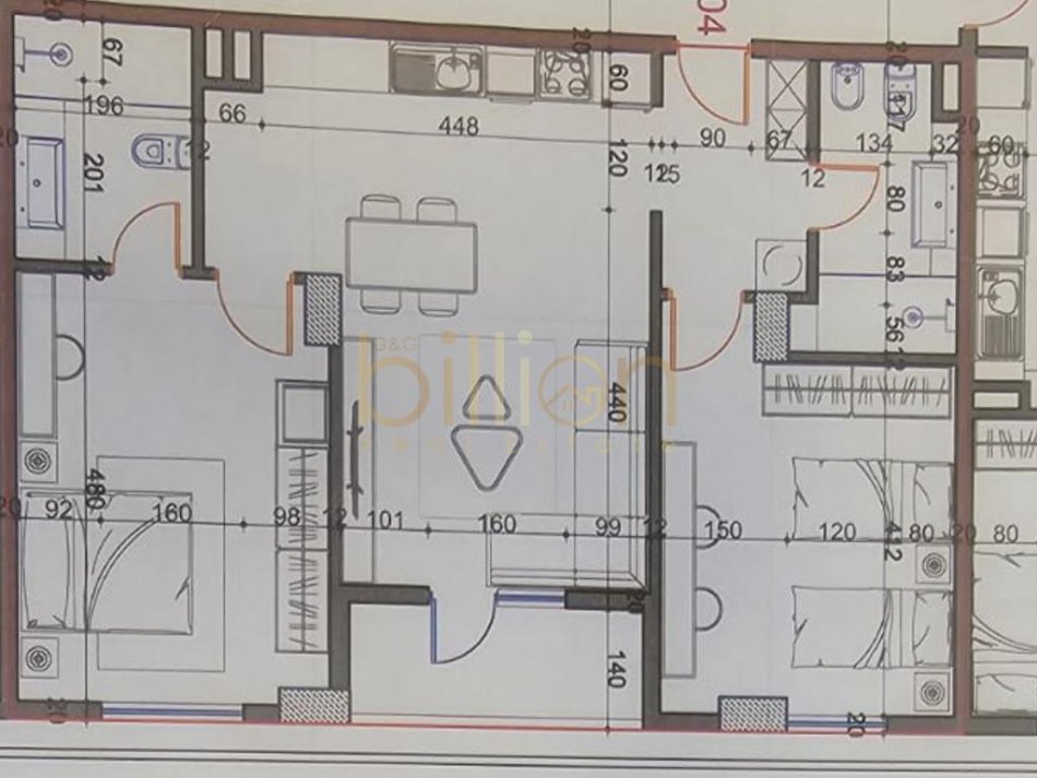
Shitet apartament 2+1 në Kamëz, me sipërfaqe 102 m².
Apartamenti përbëhet nga një sallon , dy dhoma gjumi dhe dy tualete, duke ofruar komoditet maksimal për familjarët.
Ndodhet në një zonë të zhvilluar dhe me akses të lehtë në shërbime, ideale si për banim, ashtu edhe për investim.
Dokumentacion i rregullt hipotekor.
Për më shumë informacione ose për të planifikuar një vizitë në pronë na kontaktoni në +355699296398.
Contact
Location information
Open in maps
address
Kamez, Tirane, Shqiperi
Rr. Ukraina e Lirë, prapa Kullave Binjake, Tiranë
[email protected] | +355692033500