

Tirane, shitet garsonier 1+1+Ballkon Kati 4, 47 m² 76.800 € (SAUK)
Tirane
Nr. Njesia - Zona me e afert?
2 Qyteti Studenti | Sauk
Tipi
garsonier
Siperfaqja m²
47
m²
Nr dhoma
1 dhome
Kati
Kati
4
Cmimi Euro
76800
€
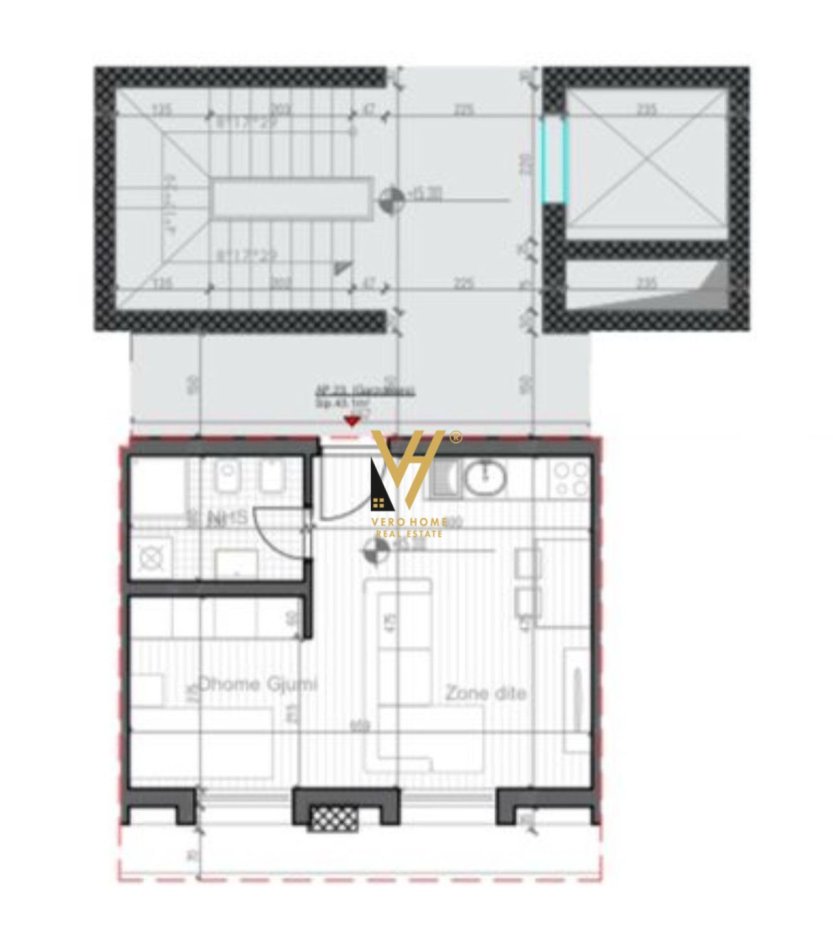
SHITET GARSONIERE
~47.95 M2 SIPERFAQE BRUTO
~43.10 M2 SIPERFAQE NETO
~MUNDESI KTHIMI NE 1+1
~BALLKON
~PALLAT I RI ME ASHENSOR
~NE FAZE NDERTIMI
~KATI I 4 (I FUNDIT)
~PORTA E RE, SAUK
~CMIMI 76.800 EURO
KONTAKTONI 0676722221
R200
Cel. : 0676722221
Contact
Location information
Open in maps
address
2 Qyteti Studenti | Sauk, Tirane, Shqiperi
Rr. Skender Luarasi 7, Tiranë
+355676722221
[email protected]