

Tirane, shitet garsonier , 51 m² (Paskuqan, Arden Hill Residence)
Tirane
Nr. Njesia - Zona me e afert?
11 Instituti | Kamez | Paskuqan
Location Rruga + Nr.
Paskuqan, Arden Hill Residence
Tipi
garsonier
Siperfaqja m²
51
m²
Nr dhoma
1 dhome
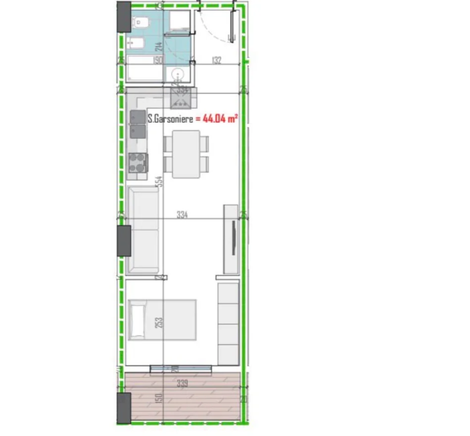
Shitet Garsoniere
Arden Hill Complex, Paskuqan
Pozicion strategjik në fund të Bulevardit të Ri, pranë Unazës së Madhe
Detaje të pronës:
• Sipërfaqe totale: 51.09 m²
• Orientim Lindje
• Fazë grope
• Përfundimi i projektit pritet brenda 24 muajsh
Çmimi: 1200€/m² me mundësi pagese me këste
Likuidim total: çmimi i diskutueshëm
Mundësi shumë e mirë investimi në një zonë në zhvillim të shpejtë.
+355 69 419 8755 për më shumë informacion
Location information
Open in maps
address
Paskuqan, Arden Hill Residence, Tirane, Shqiperi