

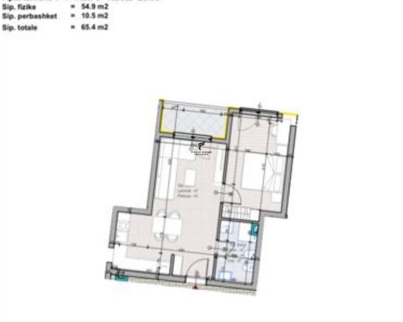
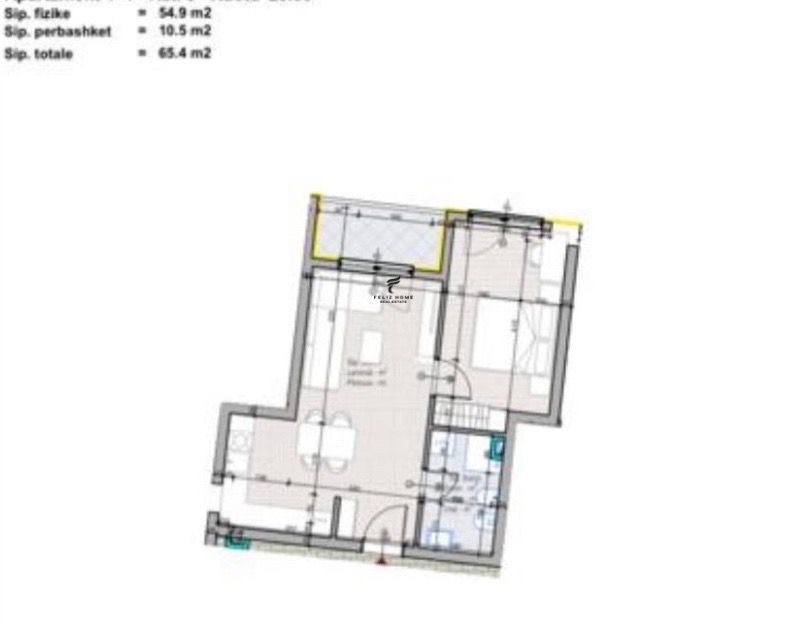
Tirane, shitet apartament 1+1 Kati 4, 65 m² 75.000 € (PASKUQAN)
Tirane
Nr. Njesia - Zona me e afert?
11 Instituti | Kamez | Paskuqan
Location Rruga + Nr.
PASKUQAN
Tipi
apartament
Siperfaqja m²
65
m²
Nr dhoma
1+1
Kati
Kati
4
Cmimi Euro
75000
€
SHITET APARTAMENT
•1+1
•SIPARFAQE TOTALE 65 M2
•KATI 4 BANIM
•DHOME GJUMI
•TUALET
•NDERTIM CILSOR
•BOSH
•FAZ TULLE
•CMIMI 75.000 EURO
•PASKUQAN
•KOMPLEKSI ALUNA
KONTAKTONI 0684447771
FELIZ HOME BG435
Cel. : 0684447771
Location information
Open in maps
address
PASKUQAN, Tirane, Shqiperi
Feliz Home Real Estate
Rruga Pjeter Bogdani, Godina nr 20, Hyrja nr.1.
Tel: 0684447771