

Tirane, shitet apartament Kati 1, 67 m² 114.150 €
Tirane
Nr. Njesia - Zona me e afert?
2 Rr. e Elbasanit | Shkolla Baletit
Tipi
apartament
Siperfaqja m²
67
m²
Nr dhoma
1+1
Kati
Kati
1
Cmimi Euro
114150
€
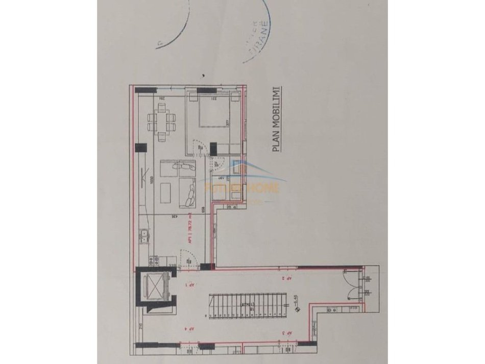
Apartamenti ndodhet ne Rrugen e Elbasanit, prane Restorant Xibraku rezidenca Xheluks.
Informacion mbi apartamentin:
• Sipërfaqja bruto: 78.72 m2
• Sipërfaqja neto: 67.3 m2
• Kati 0
Organizimi:
• Ambient ndenje
• Ambient gatimi
• 1 Dhome gjumi
• 1 Tualet
Cilësime të tjera:
• Bosh
• Ndertim i Vitit 2024
Për një vizitë në pronë na kontaktoni!
Cel. : +355692054834
Location information
Open in maps
address
2 Rr. e Elbasanit | Shkolla Baletit, Tirane, Shqiperi
+355 692054834