

Himare, shitet apartament 1+1+Ballkon Kati 1, 95 m² 230.000 € (MORINA RESORT, DRYMADES)
Himare
Location Rruga + Nr.
MORINA RESORT, DRYMADES
Tipi
apartament
Siperfaqja m²
95
m²
Nr dhoma
1+1
Kati
Kati
1
Cmimi Euro
230000
€
SHITET APARTAMENT- MORINA RESORT, DRYMADES
Lokacion elitar, ne nje nga rezidencat me te preferuara
Detaje të ambientit:
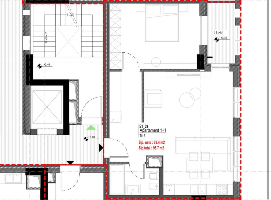
Tipologji: 1+1
Organizimi: Dhome Gjumi + Dhome Ndenje+ 1 Tualet
Sipërfaqe totale: 95.7m²
Sipërfaqe neto: 78.4m²
Kati 1
Ne faze grope
Mundesi e mir Investimi
Nje nga zonat me te frekuentuara
Kthim investimi i shpejte
Çmimi: 230.000 Euro
Për më shumë informacion ose vizitë në ambient:
067 672 2221
Kodi : EKD88200
Cel. : 0676722221
Contact
Location information
Open in maps
address
MORINA RESORT, DRYMADES, Himare, Shqiperi
Rr. Skender Luarasi 7, Tiranë
+355676722221
[email protected]