


Tirane, shitet apartament 1+1 Kati 4, 72 m² 116.000 € (FUSHA E AVIACIONIT)
Tirane
Nr. Njesia - Zona me e afert?
7 Fusha Aviacionit
Location Rruga + Nr.
FUSHA E AVIACIONIT
Tipi
apartament
Siperfaqja m²
72
m²
Nr dhoma
1+1
Kati
Kati
4
Cmimi Euro
116000
€
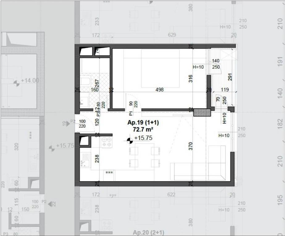
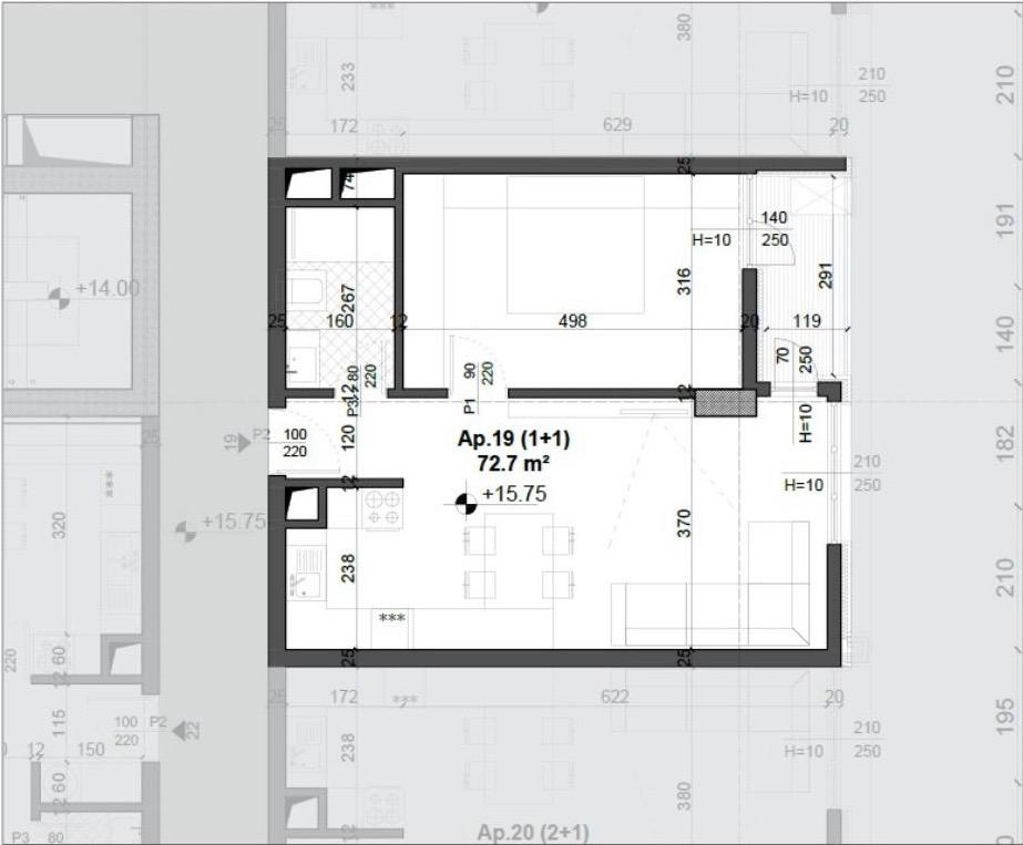
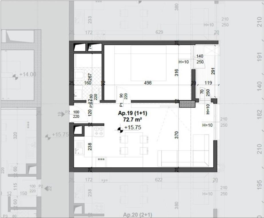
SHITET APARTAMENT
•1+1
•SIPERFAQE TOTALE 72.7 M2
•KATI 4
•PALLAT I RI
•ME ASHENSOR
•1 DHOME GJUMI
•1 TUALET
•ORIENTIM LINDJE
•NDERTIM (FAZE PERFUNDIMI)
•FUSHA AVIACIONIT
•CMIMI 116.000 EURO
•KONTAKTO 0684447771
FELIZ HOME MSH441/FI449
Cel. : 0684447771
Location information
Open in maps
address
FUSHA E AVIACIONIT, Tirane, Shqiperi
Feliz Home Real Estate
Rruga Pjeter Bogdani, Godina nr 20, Hyrja nr.1.
Tel: 0684447771