


Shitet OKAZION Apartamenti 3+1 tek Bulevardi i Ri, 225.885 €uro
Tirane
Nr. Njesia - Zona me e afert?
8 Rr. Bardhyl | Siri Kodra | Riza Cerova
Location Rruga + Nr.
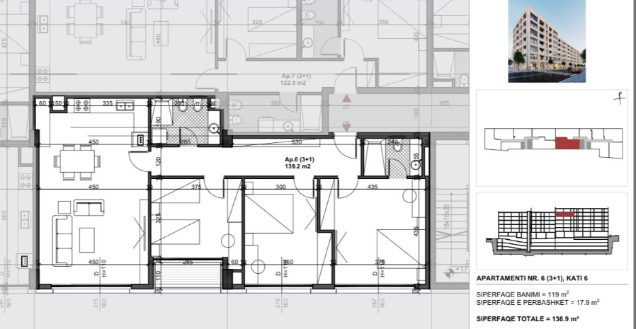
Shitet Apartamenti 3+1 tek Bulevardi i Ri
Tipi
apartament
Siperfaqja m²
139
m²
Nr dhoma
3+1
Kati
Kati
6
Cmimi Euro
225885
€
Shitet Apartamenti 3+1 tek Bulevardi i Ri
Ndodhen në një kompleks të ri, aktualisht në fazë ndërtimi
Siperfaqe 136.9 m2
kati i 6 me ashensor
(kat i 5, së shpejti fillojnë tullat dhe ndarjet).
Me planimetri të ndryshme që mund t’i përshtasësh sipas nevojës.
Çmimi: 1650 €uro/m²
Cmimi 225.885 Euro
1550 €/m² për pagesë cash.
Lokacion i favorshëm, afër sheshit të ri dhe rrugëve kryesore.
Planimetria mund të dërgohet sipas kërkesës.
Vizitat mund të organizohen që nga java tjetër.
F RFS REAL ESTATE
Cel. : +355 69 825 6321
Location information
Open in maps
address
 Shitet Apartamenti 3+1 tek Bulevardi i Ri
 Shitet Apartamenti 3+1 tek Bulevardi i Ri , Tirane, Shqiperi
, Tirane, Shqiperi069 38 90 244