

Shitet OKAZION Apartament 1+1 tek Fusha e Aviacionit, 112.685 €URO
Tirane
Nr. Njesia - Zona me e afert?
7 Fusha Aviacionit
Location Rruga + Nr.
Shitet Super Apartament 1+1 tek Fusha e Aviacionit
Tipi
apartament
Siperfaqja m²
72
m²
Nr dhoma
1+1
Cmimi Euro
112685
€
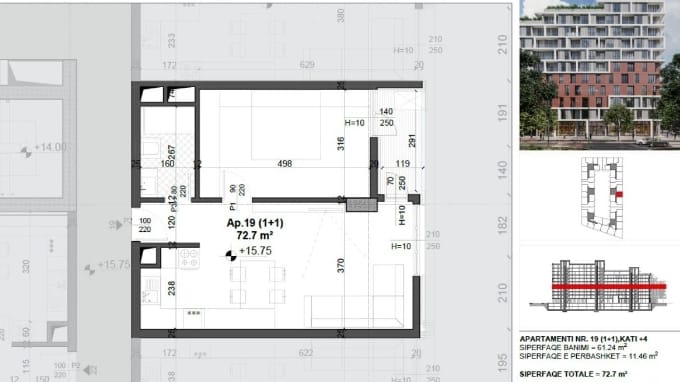
*Shitet Super Apartament 1+1 tek Fusha e Aviacionit*
*Vendndodhje: Fusha e Aviacionit*
*Tipologjia:* 1+1
*Kati:* 4
*Sipërfaqe:* 72.7 m²
*Çmimi:* 1,550 €/m²
*Total:* 112,685 Euro
*Përfundon për 2 vite*
*Mundësi shumë e mirë investimi*
RFS REAL ESTATE
Cel. : 0693890244
Location information
Open in maps
address
069 38 90 244