

Durres, shitet apartament 1+1+Ballkon Kati 3, 72 m² 85.800 € (Kompleksi Viena, Golem, Kavajë Durrës, Albania)
Durres
Location Rruga + Nr.
Kompleksi Viena, Golem, Kavajë Durrës, Albania
Tipi
apartament
Siperfaqja m²
72
m²
Nr dhoma
1+1
Kati
Kati
3
Cmimi Euro
85800
€
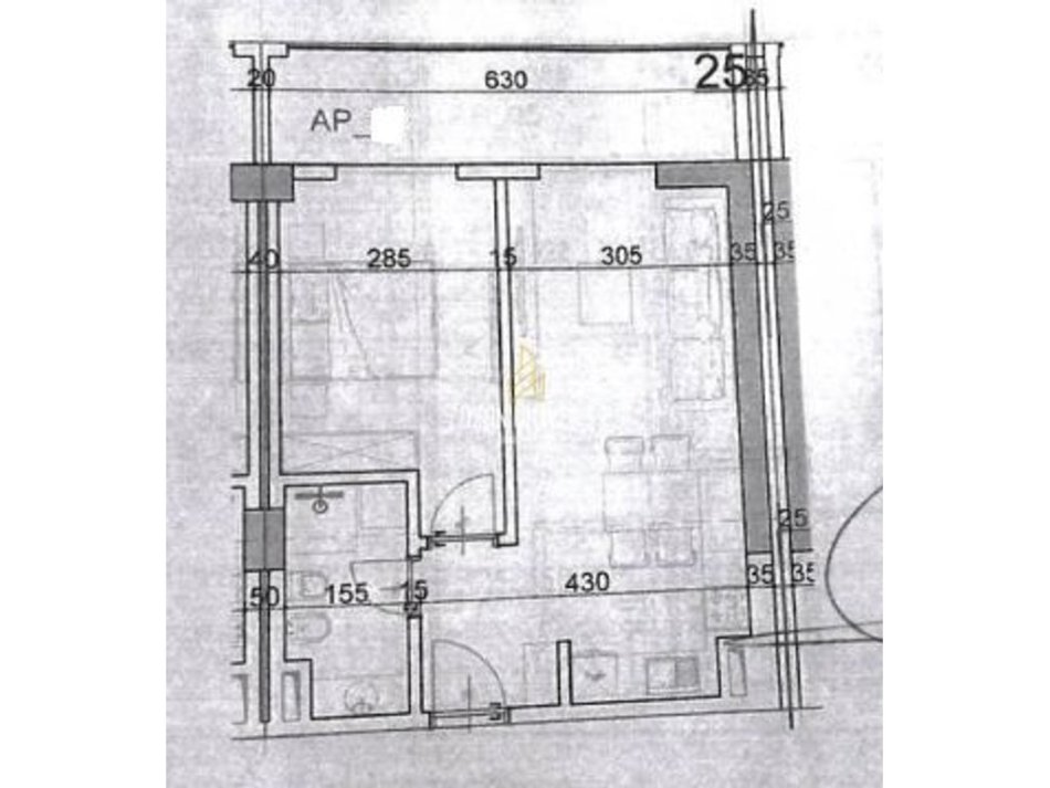
✦DETAJET E PRONËS:
─────────────
•Tipologji: 1+1
•Sipërfaqe neto: 62.2 m²
•Sipërfaqe bruto: 71.5 m²
•Kati: 3
•Lokacioni: Kompleksi Viena, Golem, Kavajë
✦ORGANIZIMI I BRENDSHËM:
───────────────────
•Sallon ndenjeje me kuzhinë të përfshirë
•1 dhomë gjumi
•1 tualet
•1 ballkon me akses nga dhoma e gjumit dhe salloni.
✦KARAKTERISTIKAT:
────────────
•I përshtatshëm për banim apo si shtëpi pushimi
•Mundësi shumë e mirë investimi me potencial të lartë për qira sezonale
•Ndërtim cilësor në kompleks të mirëmbajtur.
✦ZONA:
────
•Apartamenti ndodhet në Golem, Kavajë – një zonë turistike shumë e kërkuar përgjatë bregdetit të Durrësit.
•Akses i lehtë në:
•Plazh (në distancë ecjeje)
•Bare, restorante dhe resorte turistike
•Market, farmaci, transport publik
•Qendra argëtimi dhe shërbime të përditshme
✦ Çmimi:
85,800 € ( i diskutueshëm )
Cel. : +355686003002
Contact
Location information
Open in maps
address
Kompleksi Viena, Golem, Kavajë Durrës, Albania, Durres, Shqiperi
Rr. “Astrit Sulejman Balluku” 1001 Tirana – Albania
(Tek Gjykata e Rrethit)
+355686003002 | [email protected]