





Tirane, shitet apartament 2+1 , 121 m² 211.500 € (Liqeni i Farkes)
Tirane
Nr. Njesia - Zona me e afert?
2 TEG | Lunder | Farke | Mjull-Bathore
Location Rruga + Nr.
Liqeni i Farkes
Tipi
apartament
Siperfaqja m²
121
m²
Cmimi Euro
211500
€
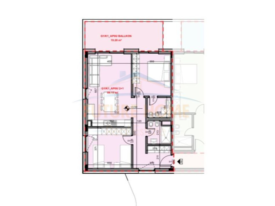
PershkrimiInformacion mbi apartamentin :
• Siperfaqja bruto : 120.77m2
• Siperfaqja neto : 107.43m2
• Kati 1 banim
Organizimi :
• Sallon ndenje
• Ambient gatimi
• 2 Dhoma gjumi
• 2 Tualete
• Ballkon
• Bosh
Cilesime te tjera:
• Pamje e lire nga liqeni
• Cilesi e larte ndertimi
• Kompleksi ndodhet në një nga zonat më të mira, duke ofruar qetesi dhe komoditet.
Për një vizitë në pronë na kontaktoni!
Referenca:
ELT57497
Cel. : 0695136472
Location information
Open in maps
address
Liqeni i Farkes, Tirane, Shqiperi