





Tirane, shitet apartament 1+1+Ballkon Kati 4, 72 m² 180.750 € (Tek Ministria e Jashtme - ID 41111100)
Tirane
Nr. Njesia - Zona me e afert?
3 Ministria e jashtme | Brryli
Location Rruga + Nr.
Tek Ministria e Jashtme - ID 41111100
Tipi
apartament
Siperfaqja m²
72
m²
Nr dhoma
1+1
Kati
Kati
4
Cmimi Euro
180750
€
Disponojme per shitje 5 apartamente 1+1 ne nje nga projektet me te reja tek Ministria e Jashtme, Sol Residence!
E vendosur tek Ministria e Jashtme dhe pranë Pazarit të Ri, ndertuar nga nje nga firmat me prestigjoze ne treg LIM-EM, Sol Residence është dizajnuar me kujdes dhe profesionalizëm për të siguruar një përvojë komode, elegante dhe funksionale për investitorët dhe banorët. Si një nga projektet më tërheqëse në Tiranë, ajo kombinon modularitetin me stilin modern, duke i dhënë rëndësi maksimale elegancës dhe funksionalitetit.
Aapartamenti 1-organizohet ne soxhorno dhe ambient gatimi, tualet, ballkon, orientim perendim, i pozicionuar ne katin e 4 .
Siperfaqe totale: 77.3 m², siperfaqe neto 65.5 m².
Cmimi i shitjes 193 500 euro\ 2500 euro m².
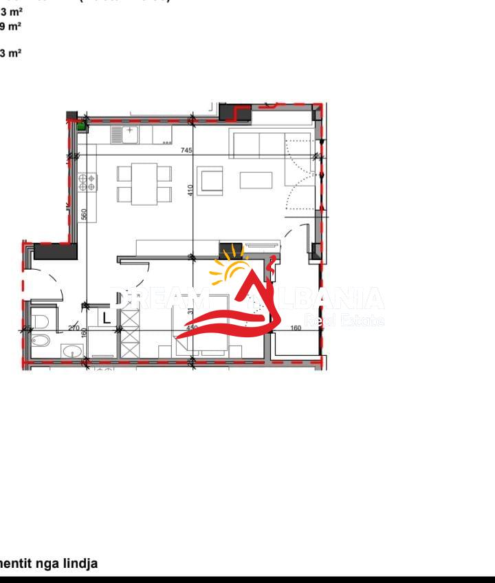
Apartamenti 2- organizohet ne soxhorno dhe ambient gatimi, tualet, ballkon, orientim jug-lindje, i pozicionuar ne katin e 4.
Siperfaqe totale: 72.3 m², siperfaqe neto 61.3 m².
Cmimi i shitjes 180 750 euro\ 2500 euro m².
Apartamenti 3- organizohet ne soxhorno dhe ambient gatimi, tualet, ballkon, orientim lindje, i pozicionuar ne katin e 4.
Siperfaqe totale: 77.4 m², siperfaqe neto 65.6 m².
Cmimi i shitjes 193 500 euro\ 2500 euro m².
Apartamenti 4- organizohet ne soxhorno dhe ambient gatimi, tualet, ballkon, orientim lindje, i pozicionuar ne katin e 4.
Siperfaqe totale: 81.8 m², siperfaqe neto 69.3 m².
Cmimi i shitjes 204 500 euro\ 2500 euro m².
Apartamenti 5- organizohet ne soxhorno dhe ambient gatimi, tualet, ballkon, orientim lindje, i pozicionuar ne katin e 4.
Siperfaqe totale: 78.3 m², siperfaqe neto 66.3 m².
Cmimi i shitjes 195 750 euro\ 2500 euro m².
Aktualisht ne faze tulle, behet e banueshme ne qershor 2026.
Cmimi i shitjes me 2500 euro \m² .
Cel. : 0673088830
Contact
Location information
Open in maps
address
Tek Ministria e Jashtme - ID 41111100, Tirane, Shqiperi
DREAM ALBANIA real estate&tour
Cel: +355 69 606 2112
Cel: +355 69 233 0488
E-mail: [email protected]
Adresa: Rr. MIne Peza,
perballe Komisariatit Policise nr.3
Listo pronat - DREAM Albania Real Estate