
SHITET APARTAMENT 2+1+BALLKON TE ALBULENA RESIDENCE,LIDHJA E PRIZRENIT,PASKUQAN 104.808 EURO
SHITET APARTAMENT
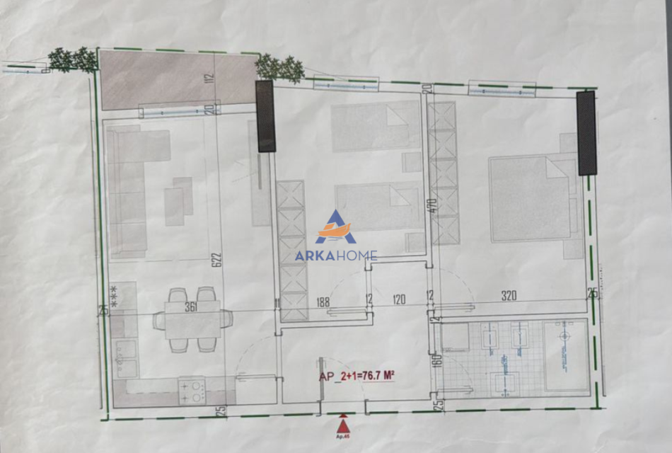
•87.34M2
•2+1+BALLKON
•KATI I 6 BANIM
•PALLAT I RI NE FAZE PERFUNDIMI
•ME ASHENSOR
•NRICIM NATYRAL GJATE DITES
•PUNIME CILESORE
•CMIMI 104.808 EURO
•TE ALBULENA RESIDENCE,LIDHJA E PRIZRENIT,PASKUQAN
KONTAKTONI NE NUMRIN TONE 069632000
G2
Cel. : 069632000
Rr. Mustafa Qosja, pranë Vasil Shanto - Tiranë