
Tirane, shitet apartament 2+1+Ballkon Kati 3, 97 m² 75.100 € (KAMEZ)
Tirane
Nr. Njesia - Zona me e afert?
11 Instituti | Kamez | Paskuqan
Tipi
apartament
Siperfaqja m²
97
m²
Nr dhoma
2+1
Kati
Kati
3
Cmimi Euro
75100
€
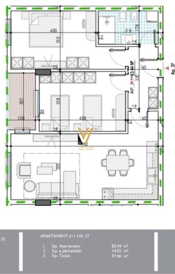
SHITET APARTAMENT
~SIPERFAQE TOTALE 97.46M2
~KATI 3
~TIPOLOGJI 2+1
~PALLAT I RI
~ME ASHENSOR
~NDRICIM NATYRAL GJATE DITES
~ZONE E AKSESUESHME
~CMIMI 75.100 EURO
~KAMEZ
KONTAKTONI 0676722221
KLS6500
Cel. : 0676722221
Contact
Rr. Skender Luarasi 7, Tiranë
+355676722221
[email protected]